| Schocken-Carré | in Arbeit | Nürnberg | 2026 |
| Low-Tech-Hochhaus Regensburger Straße | realisiert | Nürnberg | 2024 |
| Haus der Wirtschaft Nürnberg | realisiert | Nürnberg | 2020 |
| Stadtbibliothek Weißenfels | Wettbewerb | Weißenfels | 2024 |
| KreativInstitut Ostwestfalen-Lippe | realisiert | Detmold | 2023 |
| Heizhaus und Parkhaus für das Regensburger Viertel | realisiert | Nürnberg | 2024 |
| Rathaus der Zukunft | Wettbewerb | Berlin | 2025 |
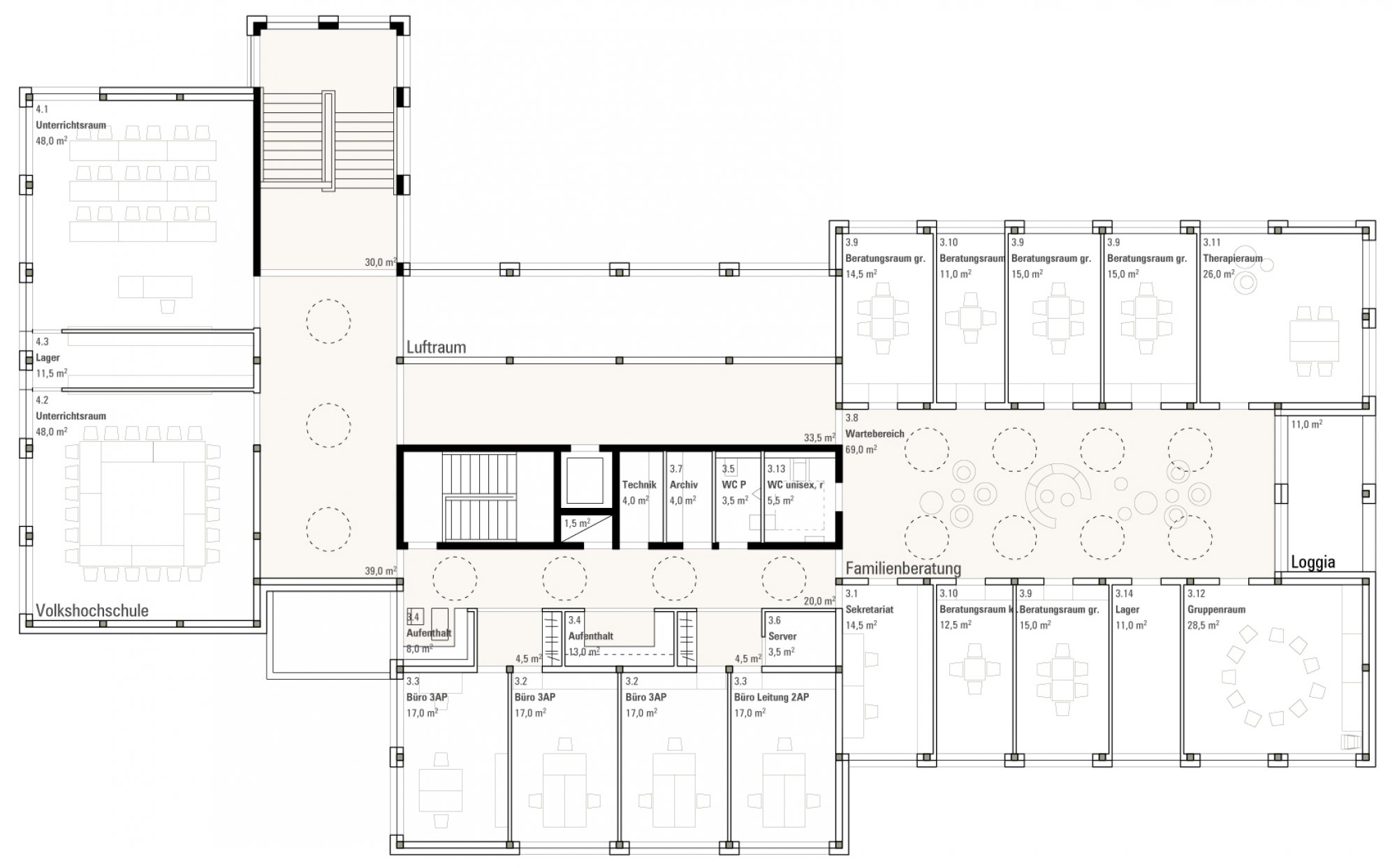
| Kita Regensburger Viertel Nürnberg | realisiert | Nürnberg | 2024 |
| Schule an der Jungfernheide | Wettbewerb | Berlin | 2026 |
| Regensburger Viertel Nürnberg | realisiert | Nürnberg | 2024 |
| Haus der Materialien Belval | realisiert | Esch-sur-Alzette (LU) | 2022 |
| Forschungszentrum Giessen | realisiert | Giessen | 2011 |
| Machbarkeitsstudie Umfeld ICC | Studie | Berlin | 2024 |
| Orleanshöfe Block 1 | in Arbeit | München | 2027 |
| Gymnasium Strausberg | in Arbeit | Strausberg | 2027 |
| Bürohaus am Frankenstadion | realisiert | Nürnberg | 2024 |
| Maximilianstraße Nürnberg | Wettbewerb | Nürnberg | 2025 |
| 2Raumwohnung | realisiert | Berlin | 2006 |
| FU-Institutsgebäude Boltzmannstraße 3 | realisiert | Berlin | 2021 |
| Wissenschaftsgebäude für Biodiversität FU/IGB Berlin | Wettbewerb | Berlin | 2017 |
| Kindergarten Berlin | realisiert | Berlin | 2006 |
| Haus für Familie und Bildung am Ostbahnhof | Wettbewerb | Berlin | 2021 |
| Erweiterung Marien-Krankenhaus Lübeck | Wettbewerb | Lübeck | 2016 |
| Kirbachschule Hohenhaslach | Wettbewerb | Hohenhaslach | 2024 |
| Charkovstraße Nürnberg | Wettbewerb | Nürnberg | 2022 |
| Julius Kühn Institut Berlin | Wettbewerb | Berlin | 2018 |
| Ravensberg Areal Konstanz | Wettbewerb | Konstanz | 2020 |
| Haus See-Eck II | realisiert | Berlin | 2010 |
| FU-Villa Boltzmannstraße | realisiert | Berlin | 2010 |
| Casa Skuppin | realisiert | Sizilien | 2005 |
| Haus See-Eck I | realisiert | Berlin | 2003 |
| Bürodienstgebäude Alt-Friedrichsfelde | Wettbewerb | Berlin | 2021 |
| Johanniterzentrum Andreasgärten Erfurt | Wettbewerb | Erfurt | 2015 |
| Staatstheater Landshut | Wettbewerb | Landshut | 2018 |
| Werkstätten und Ateliers Burg Giebichenstein | Wettbewerb | Halle | 2021 |
| Neu- und Umbau von Betriebs-, Labor- und Verwaltungsgebäuden für die Stadtentwässerung und Umweltanalytik Nürnberg | Wettbewerb | Nürnberg | 2021 |
| Sorbisches Wissensforum | Wettbewerb | Bautzen | 2023 |
| Johann-Peter-Hebel-Grundschule | Wettbewerb | Gundelfingen | 2023 |
| FSB Türdrücker | realisiert | Brakel | 2004 |
| Integrierte Sekundarschule Garzauer Straße | Wettbewerb | Berlin | 2021 |
| Gymnasium Rhenaniastraße Berlin-Spandau | Wettbewerb | Berlin | 2023 |
| Ilmenau Grundschule | Wettbewerb | Deutsch Evern | 2020 |
| Erweiterung der Klinik für psychische Gesundheit Münster | Wettbewerb | Münster | 2022 |
| Polizeirevier Titisee-Neustadt | Wettbewerb | Titisee-Neustadt | 2023 |
| Nördliches Umfeld der Messe Berlin | Studie | Berlin | 2003 |
| Zwei Kitas in Paderborn | Wettbewerb | Paderborn | 2017 |
| Besucherzentrum des Deutschen Bundestages Berlin | Wettbewerb | Berlin | 2016 |
| Schmucker Areal Utting | Wettbewerb | Utting | 2017 |
| Sächsisches Krankenhaus Altscherbitz | Wettbewerb | Altscherbitz | 2014 |
| Kleist-Oberschule Frankfurt (Oder) | Wettbewerb | Frankfurt (Oder) | 2019 |
| LWL Freilichtmuseum Detmold | Wettbewerb | Detmold | 2018 |
| Investitionsbank des Landes Brandenburg | Wettbewerb | Potsdam | 2012 |
| Gesamtschule Krampnitz | Wettbewerb | Krampnitz | 2022 |
| Geschäftszentrum Siedlungswerk Nürnberg | Wettbewerb | Nürnberg | 2021 |
| Grundschule Miltenberg | Wettbewerb | Miltenberg | 2017 |
| Bildungszentrum der Handwerkskammer Karlsruhe | Wettbewerb | Karlsruhe | 2024 |
| Kita Reinsdorf | Wettbewerb | Reinsdorf | 2011 |
| Landratsamt Tirschenreuth | Wettbewerb | Tirschenreuth | 2022 |
| Leibnizbögen | Studie | Berlin | 2017 |
| Changxing Tower | Studie | Changxing | 2010 |
| Erweiterung Josef Albers Museum Bottrop | Wettbewerb | Bottrop | 2016 |
| Bundestagsverwaltung Berlin | Wettbewerb | Berlin-Mitte | 2014 |
| Kita Kyritz Mitte | Wettbewerb | Kyritz | 2013 |
| Martin-Niemöller-Gesamtschule Bielefeld | Wettbewerb | Bielefeld | 2019 |
| Laborgebäude für das Robert Koch Institut an der Seestraße | Wettbewerb | Berlin | 2023 |
| Wilhelmstrasse 64 | Wettbewerb | Berlin | 2011 |
| Verwaltung Universitätsklinikum Ulm und Dekanat der medizinischen Fakultät | Wettbewerb | Ulm | 1999 |
| Biomedical Center Martinsried | Wettbewerb | Martinsried | 2007 |
| Shrink to Fit Magdeburg | Studie | Magdeburg | 2004 |
| Sankt-Jakobs-Platz München | Wettbewerb | München | 2000 |
| Parkstadt Weckhoven | Wettbewerb | Neuss-Weckhoven | 2012 |
| Rathauserweiterung Droste-Hülshoff-Platz Bottrop | Wettbewerb | Bottrop | 2022 |
| Diplomatenpark Am Tiergarten | Studie | Berlin | 2005 |
| Friedrichswerder Stadthäuser im Zentrum | Studie | Berlin | 2004 |
| ÖBB Zentrale | Wettbewerb | Wien | 2009 |
| Fortbildungszentrum der Auswärtigen Amtes | Wettbewerb | Berlin | 2007 |
| Zukunftszentrum Halle | Wettbewerb | Halle | 2024 |
| Strategischer Masterplan Beuth-Hochschule Berlin | realisiert | Berlin | 2015 |
| Rathaus Laupheim | Wettbewerb | Laupheim | 2018 |
| Double Twin Plaza Changxing | realisiert | Changxing | 2015 |
| Vorklinikum Regensburg | Wettbewerb | Regensburg | 2015 |
| Bundesministerium und Wohnungen auf dem Postblockareal Süd in Berlin | Wettbewerb | Berlin | 2023 |
| Seniorenwohngemeinschaft Freiburg | realisiert | Freiburg | 2014 |
| Müllverbrennungsanlage und Biogas Wien-Pfaffenau | Wettbewerb | Wien | 2003 |
| Kita Jerusalemer Straße | Wettbewerb | Berlin | 2000 |
| Les Maisons des Sciences Belval | Wettbewerb | Esch-sur-Alzette (L) | 2009 |
| Blockbuster Berlin | Studie | Berlin | 2002 |
| Wasserwerk Tegel | Studie | Berlin | 2008 |
| Hundsun Science And Technology Park | Studie | Changzhou | 2010 |
| Berufskolleg-Campus Moers | Wettbewerb | Moers | 2015 |
| Otto-Hahn-Oberschule Berlin | Wettbewerb | Berlin | 2001 |
| Mauerstreifen Bernauer Strasse | Studie | Berlin | 2007 |
| HafenCity Universität Hamburg | Wettbewerb | Hamburg | 2006 |
| Referat Gesundheit und Umwelt München | Wettbewerb | München | 2013 |
| Spreepark Berlin | Studie | Berlin | 2004 |
| Sanierung des Rathaus-Neubaus Braunschweig | Wettbewerb | Braunschweig | 2021 |
| Aussichtsrad am Zoo | Studie | Berlin | 2008 |
| Berolinaschule | Wettbewerb | Berlin | 2009 |
| Der Tagesspiegel | Studie | Berlin | 2002 |
| MediaCityPort Hamburg | Wettbewerb | Hamburg | 2001 |
| Erweiterung Gymnasium Coesfeld | Wettbewerb | Coesfeld | 2022 |
| Erweiterung Grundschule Gescher | Wettbewerb | Gescher | 2023 |
| Güterbahnhof Pankow | Studie | Berlin | 2005 |
| Erinnerungsstätte Grossmarkthalle | Wettbewerb | Frankfurt am Main | 2009 |
| Lian Lian Business Plaza | realisiert | Hangzhou | 2011 |
| Deutscher Fassadenpreis 2008 | Wettbewerb | Berlin | 2008 |